Schutzabdeckung 210x147,5mm
Produktinformationen "Schutzabdeckung 210x147,5mm"

Diese ARBO / CE -geprüfte Schutzhülle für Bohrmaschinen und Fräsmaschinen schützt Sie beim Arbeiten vor Absplitterungen.
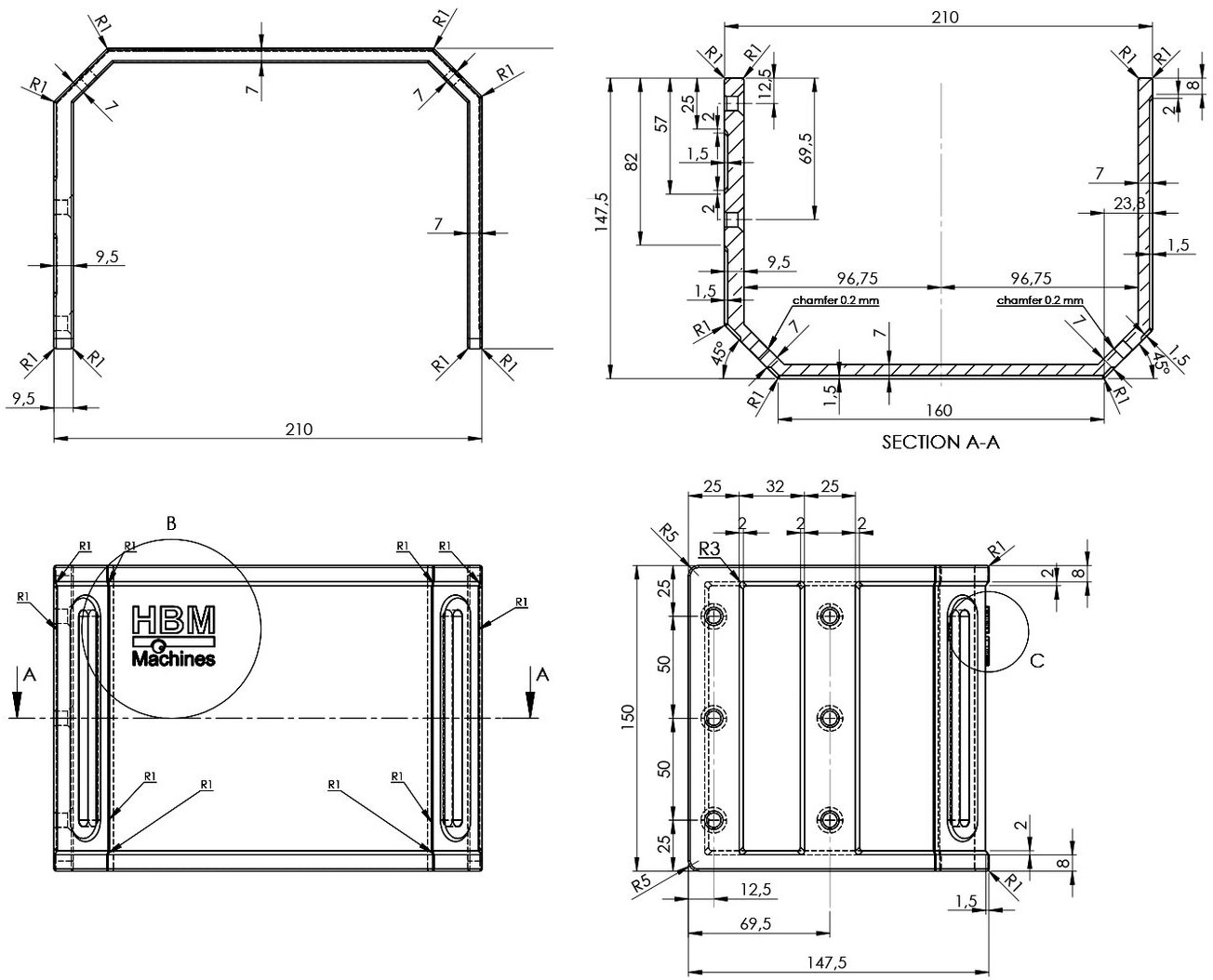
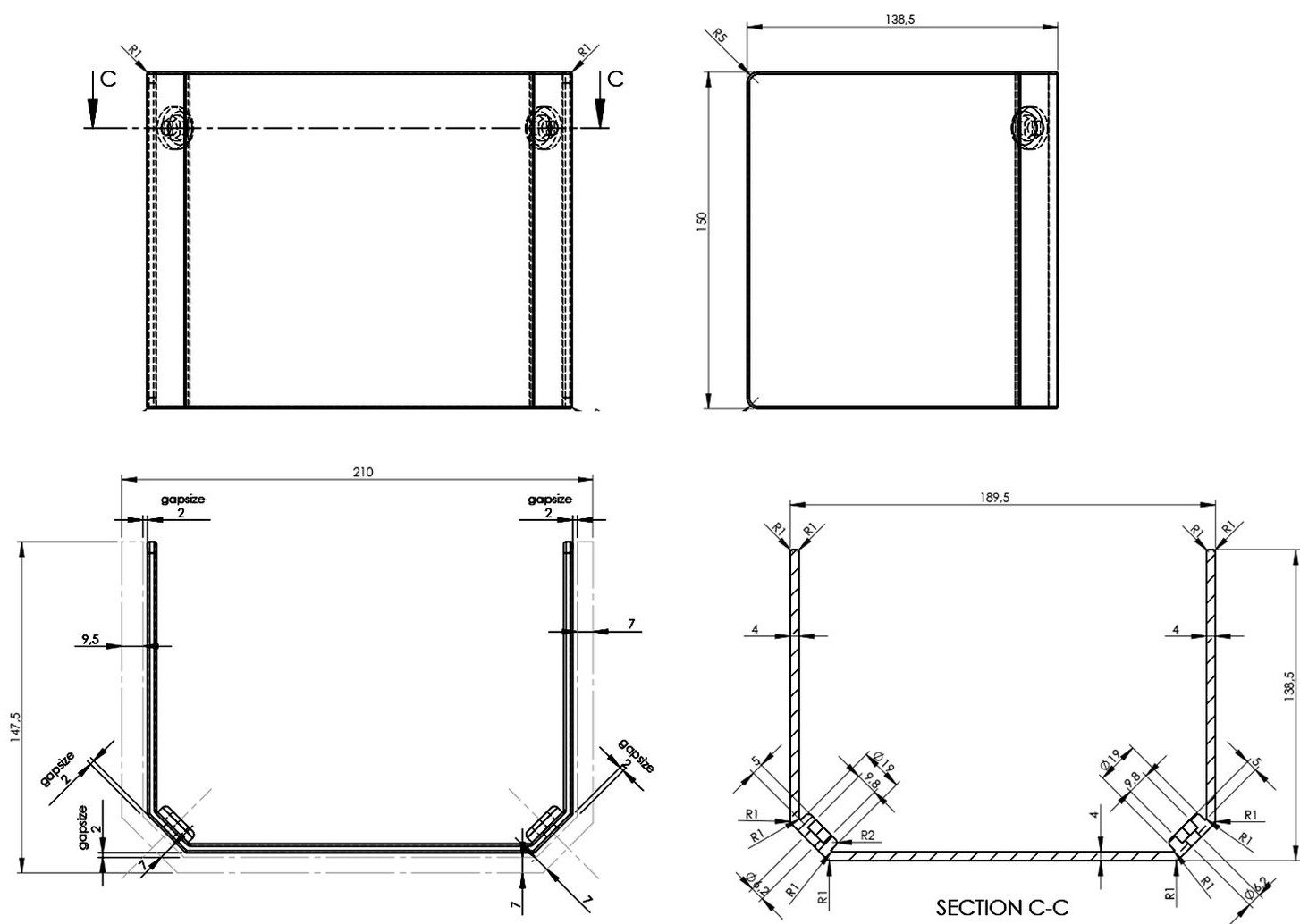
Genaue Abmessungen der Schutzabdeckung und die Montageanleitung finden Sie in der Fotogalerie. So können Sie genau bestimmen, ob diese Schutzhülle zu Ihrer Maschine passt.
Diese Schutzabdeckung ist ein universeller Schutz, der auf fast jede vorhandene Bohr- und Fräsmaschine montiert werden kann. Sie kann einfach mit zwei Bolzen an der Maschine montiert werden. Die Höhe kann leicht angepasst werden. Die Vorrichtung muss noch elektrisch angeschlossen werden, da sie mit dem vorgeschriebenen Sicherheitsschalter ausgestattet ist. Die Schutzvorrichtung wurde in Zusammenarbeit mit der ARBO in Übereinstimmung mit den neuesten ARBO-, NEN-EN 12717-2009- und CE-Normen entwickelt.
Technische Informationen:
| Abmessungen der Schutzabdeckung | 210 x 147,5 mm |
|---|---|
| Höhe der Schutzabdeckung | variabel einstellbar |
| Gewicht | 500 g |